COLUMN SIZE = 10″ X 10″
FOUNDATION SIZE = 5′-0″ X5′-0″ X 5′-0″
TIE BEAM SIZE = 10″ X 12″ , 5″ X 10″
TIE BEAM LAYOUT PLAN
COLUMN SIZE = 10″ X 10″
FOUNDATION SIZE = 5′-0″ X5′-0″ X 5′-0″
COLUMN LAYOUT & DETAILS DRAWING
COLUMN LAYOUT PLAN DESIGN
GROUND FLOOR DESIGN
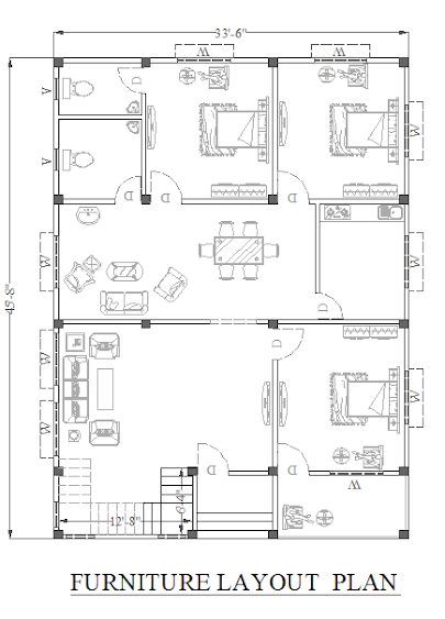
FURNITURE LAYOUT PLAN
INTERIOR DESIGN
COLUMN SIZE = 10″ X 10″
FOUNDATION SIZE = 5′-0″ X5′-0″ X 5′-0″
FLOOR PLAN DETAILS





