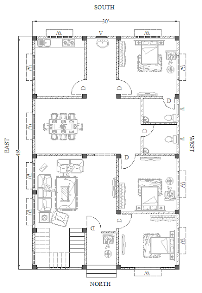
30 x 48 house plan design
30 x 48 house plan design
3 bedrooms house plan
Ground Floor plan design
3 bedroom duplex house plan design
30′-0”x48′-0″ 3 BED ROOM, DRAWING ROOM, OPEN KITCHEN DINNING AREA ,ONE ATTACH TOILET, ONE COMMON TOILET ,FRONT BALCONY GROUND FLOOR =1440 SQUARE FEET
INTERNAL &
EXTERNAL WALL
TH. 5″
COLUMN
SIZE=10″x10″
EXTERNAL WALL
TH. 5″
COLUMN
SIZE=10″x10″
Tie & Floor Beam layout Plan
30 x 48 home design
Column Layout Plan
Foundation Layout Plan
30 x 48 house 3 bedroom apartment layout





Please 60 x 22 fit 3bed room 2 bath 2 unit plzzzz
One car porch also
Good plan… Can you fix one pooja room in this plan